Trzypokojowe mieszkanie z ogródkiem Październik 26

Mieszkanie na sprzedaż
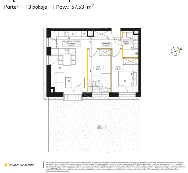
695 538,00 PLN , Pow. 57,53 m2
Drukuj ofertę
Drukuj ofertę
Typ nieruchomości:
Mieszkanie
Powierzchnia:
57,53 m2
Typ transakcji:
sprzedaż
Liczba pokoi:
3
Lokalizacja:
Wrocław Maślice , Rędzińska
Rok budowy:
2026
Piętro:
0 na 3
Numer oferty:
868432
Cena za m2:
12 090,01 PLN
Na sprzedaż nowoczesne, trzypokojowe mieszkanie zlokalizowane w inwestycji Rędzińska, zaprojektowanej z myślą o komforcie i codziennych potrzebach mieszkańców.

Mieszkanie składa się z:
- salonu z aneksem kuchennym(aneks z oknem)
- sypialni
- pokoju
- przedpokoju
- łazienki
- ogródka

Ceny elementów dodatkowych:
- miejsce postojowe w garażu podziemnym: 35 000 zł
- miejsce postojowe naziemne z opcją ładowania samochodów elektrycznych: 30 000 zł
- komórki lokatorskie w cenie 6 000 zł za m2, dostępne metraże od 2,5 m2 do 7m2
.

Wysoki standard wykończenia obejmuje:
- drzwi wejściowe o najwyższej klasie odporności na włamanie, klasa C
- parapety z konglomeratu
- balkony wykończone deską tarasową

Inwestycja Rędzińska to spokojna, zielona przestrzeń, oferująca dobrze zaprojektowane mieszkania, pełne światła słonecznego, otoczone bujną roślinnością i kwiatami, z dala od centrum miasta, w okolicy żyjącej spokojnym rytmem.

Termin realizacji inwestycji: 31 października 2026 roku.

Ogłoszenie nie stanowi oferty w rozumieniu Kodeksu cywilnego.
RD4A/A/02
Nieprawidłowy adres E-mail