Wielki ogród 156 m2 Miejsce Post+Komórka w cenie

Mieszkanie na sprzedaż
737 739,00 PLN , Pow. 67,02 m2
Drukuj ofertę
Drukuj ofertę
Typ nieruchomości:
Mieszkanie
Powierzchnia:
67,02 m2
Typ transakcji:
sprzedaż
Liczba pokoi:
4
Lokalizacja:
Siechnice , św. Krzyża
Rok budowy:
2025
Piętro:
0 na 2
Numer oferty:
684555
Cena za m2:
11 007,74 PLN
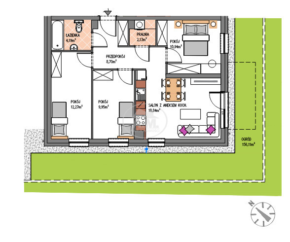
Na sprzedaż - 4-pokojowe mieszkanie z ogródkiem, Siechnice

Przedstawiamy ofertę sprzedaży mieszkania o powierzchni użytkowej 67,02 m², zlokalizowanego na parterze nowoczesnego, 2-piętrowego budynku w spokojnej części Siechnic, przy ul. Świętego Krzyża/Magnoliowej

Mieszkanie składa się z
- salonu z aneksem kuchennym
- sypialni
- sypialni
- pokoju

- łazienki
- pralni

- przedpokoju

Do lokalu przynależy prywatny ogród o powierzchni 156,11m², idealny do wypoczynku i rekreacji. Ekspozycja południowo-wschodnia, zapewnia dobre nasłonecznienie wnętrz przez większą część dnia.

Dodatkowo w cenie mieszkania zawarte są
- jedno miejsce parkingowe na terenie posesji
- komórka lokatorska

Odległość od granic Wrocławia to zaledwie 5 km. W promieniu kilkuset metrów znajdują się wszystkie niezbędne udogodnienia:
- 800 m do Dworca Kolejowego w Świętej Katarzynie
- 500 m do supermarketu Biedronka

Forma własności: pełna własność

Zakończenie inwestycji planowane na IV kwartał 2025 roku

Mieszkanie znajduje się w kompleksie 11 kameralnych budynków w zabudowie wolnostojącej. Teren inwestycji będzie ogrodzony, z szlabanem przy wjeździe, oświetleniem zewnętrznym, wyposażonym placem zabaw i stojakami rowerowymi. Lokale na parterze posiadają ogródki z ogrodzeniem panelowym. Ciągi pieszo-jezdne z kostki betonowej

Standard wykonania:
- fundamenty żelbetowe, ściany z bloczków SILKA
- stropy typu Filigran, balkony i biegi schodowe prefabrykowane
- dachówka betonowa, izolacje zgodne z dokumentacją techniczną
- elewacja z tynku strukturalnego, cokół wykończony płytkami klinkierowymi
- okna PCV z roletami na parterze, parapety wewnętrzne z konglomeratu
- drzwi wejściowe antywłamaniowe
- balustrady stalowe, panele HPL na balkonach
- ogrzewanie z węzła cieplnego Kogeneracji z indywidualnym opomiarowaniem
- instalacje wodno-kanalizacyjne i grzewcze w systemie Alu-Pex
- panele fotowoltaiczne na dachu
- stacja zmiękczania wody w części technicznej
- kompletne instalacje elektryczna, RTV, internetowa, domofonowa

Osprzęt elektryczny w mieszkaniach w standardzie (gniazda i wyłączniki), wykończenie ścian tynkami gipsowymi III kategorii, sufity gładzone. W łazienkach oraz na klatkach schodowych gres. Tarasy na poddaszu wykończone deską na legarach

Oferta nie stanowi oferty w rozumieniu Kodeksu cywilnego. Szczegóły dostępne na życzenie - zapraszamy do kontaktu
B2m4
Nieprawidłowy adres E-mail